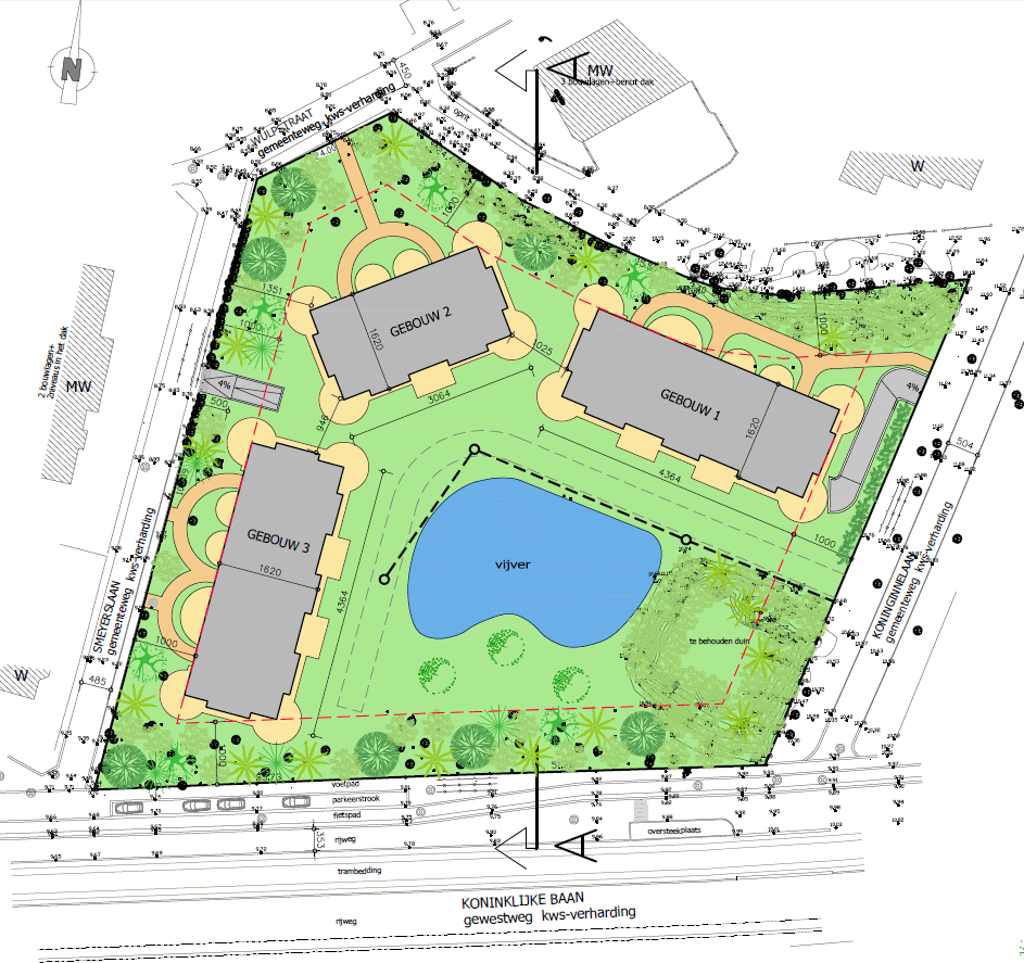
Domein Koningshof

Domein Koningshof is gelegen langs de Koninklijke Baan te Sint-Idesbald.
3 gebouwen werden opgericht rond een aangelegde siervijver met natuurlijke filtering en fontein. De vijver vormt een buffer voor het regenwater.
Eén doorlopende kelder verbindt de gebouwen en verzorgt de in- en uitrit aan weerszijden van het 8000 m² grote domein. De ondergrondse keldergarage werd bedekt met een aangepast daktuinsubstraat en beplanting die bestand is tegen zeewind en droogte. In het verlengde van de terrassen is gras voorzien als open speelruimte en residentieel karakter te benadrukken.

Tuinarchitectuur: Vereecke Lieven
Promotor: F-construct